Обновить интерьер быстро

Наш сервис поможет быстро обновить интерьер квартиры, дома, гостиницы. Для квартир вторичного фонда, новостроек c типовой отделкой, гостиниц. Перепланировка без ремонта, или минимальной косметической отделкой, новая изысканная концепция, бюджетирование переделки.

ЭКСПРЕСС ДИЗАЙН

Дизайн проект
● квартиры и объекты White box,
● квартиры с типовой отделкой от застройщика ,
● Вторичный фонд, гостиницы,
● Хоумстейджинг для риэлторов ,
●Объекты перед косметическим ремонтом,
● Объекты для продажи и сдачи в аренду и т.д.
Для кого

● Первичная консультация по телефону , выявление запроса
● Выезд на объект
● Расстановка мебели с учетом эргономики и удобства
●Итоговый план квартиры с размерами мебели и помещений
● Цветовой Коллаж интерьера
1 помещения объекта на ваш выбор
●Cпецификации , сметы

Состав
Вы получите :
Профессиональную планировку
объекта ,стильные идеи ,
спецификации с подбором.
Для объектов от 60 m2
Стоимость
От 1 500 р/m2
с 1 выездом на объект


Стоимость зависит от стиля интерьера и метража объекта
Комплектация
● Хоумстейджинг для риэлторов и агентов недвижимости (продать, сдать недвижимость дороже и быстрее),
● Гостиницы, отели, апартаменты, апарт отели, гостевые дома,
● Обновление интерьера без ремонта, с косметическим ремонтом,
● Квартиры вторичного фонда перед сдачей в аренду ,
● Новое жилье White box .
Для кого

● Первичная консультация по телефону , выявление запроса
● Подберем стилистику и отдельные элементы интерьера с учетом Ваших пожеланий и бюджета на покупки
● Советы по цветовой гамме интерьера
● Цветовые Коллажи интерьера 3-х помещения объекта на ваш выбор
● Советы по выбору мебели , светильников, текстиля , при необходимости и чистовых материалов.



Состав
Вы получите :
Цветовые коллажи помещений объекта , Спецификации мебели и элементов комплектации .
Для объектов от 60 m2
Стоимость
От 1 800 р/m2
Без выезда на объект
(Стоимость выезда - по запросу)

Консультация
● Для всех типов объектов ,
● Всех типов недвижимости ,
● Обновление интерьера .
Для кого

● Первичная консультация по телефону , выявление запроса
● Рекомендации планировке
● Рекомендации по стилю и материалам обновления
● Советы по выбору мебели , светильников, текстиля , при необходимости и чистовых материалов.
Состав
Вы получите :
Рекомендации по интерьеру и планировке , примеры и референсы интерьера , рекомендации по комплектации
Для объектов от 60 m2
Стоимость зависит от стиля интерьера и метража объекта
Стоимость
От 1 000 р/m2
Без выезда на объект
(Стоимость выезда - по запросу)

Стоимость зависит от стиля интерьера и метража объекта

ЭКСПРЕСС ДИЗАЙН

Экспресс Дизайн проект

Пример

Коллаж Концепция

Кухня
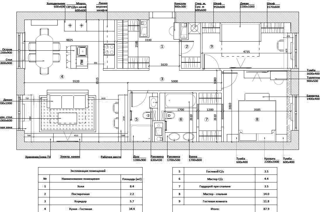
План квартиры с замерами заказчика
Кухня
Спальня
Вариант планировки
Спальня
Итоговая Планировка квартиры

Результат на фото

Остались вопросы ?


Проконсультируем вас по телефону : +7 903 130 61 70
с 10:00 до 19:00 пн-пт.

Экспресс Комплектация

Пример

Посмотрите результат на фото

Дизайнеры подобрали стиль интерьера ,разработали цветовую гамму интерьера,
выполнили Коллажи помещений в цвете . Подобрали цвета интерьерной краски, мебель, светильники , текстиль .
Было
Стало (фото интерьера)
Стало (фото интерьера)
Для квартир с отделкой от застройщиков, хоумстейджинг для для риэлторов и агентов недвижимости (чтобы продать /сдать недвижимость дороже и быстрее), для всех типов объектов, до ремонта, без учета ремонта .

Дано: квартира 70,0 m2 с отделкой от застройщика. C типовой отделкой. Без светильников, мебели, текстиля .
Задача: обновить цветовую гамму, сделать ярче. Скомплектовать интерьер мебелью, светильниками, текстилем.

Фото дома и квартиры от заказчика.
Отделка от застройщика в минималистичных стандартных цветах, нет индивидуальности , нет интерьерных решений .

Остались вопросы ?


Проконсультируем вас по телефону : +7 903 130 61 70
с 10:00 до 19:00 пн-пт.

Экспресс Консультация
● Для начала работы нужен План от застройщика , БТИ, или ваш план с замерами , фото.
● Консультация проводится в форме видео сессии с возможностью демо с экрана компьютера.
● Выявляем Ваши задачи по функционалу объекта, назначению помещений и т.д. Чем больше информации от Вас, тем лучше.
● Консультируем о возможностях перепланировать расстановку мебели , организовать новую расстановку мебели,способах усовершенствовать пространcтво.
● Подбираем стиль и материалы обновления .
● Вносим рекомендации по выбору мебели , светильников, текстиля , при необходимости и чистовых материалов.
● В результате Консультации вы получите файл в PDF формате с Примерами Референсами и списком рекомендаций.
● В Экспресс консультацию не входят разработки планировок с размера и коллажи ,эскизы помещений. Информация собирается из Портфолио нашей студии интерьеров, на основания ране разработанных объектов и носит рекомендательный характер.
● Не сомневайтесь, у нас обязательно найдется для вас решение. Так как мы обладаем большой базой креативов и выполненных нами объектов , и сможем найти примеры – как вам можно решить ваши задачи.

ОСТАЛИСЬ ВОПРОСЫ?
Если у вас есть вопросы, отправьте нам письмо
Также к письму можно прикрепить файл - план Вашей квартиры или помещения
Отправляя данные вы соглашаетесь с условиями политики конфидециальности